百货公司越来越受到购物中心的欢迎,并已成为许多企业创建差异化运营的方式之一 。其中,生活方式百货吸引了众多购物中心的关注,无印良品、ZARAHOME、蓝海Preferred等的入住率 。在新开业的购物中心就足以证明 。
万鼎是由热风队创造了近两年 。与热风的主打服装不同,万鼎主要以生活用品为主,更强调个人的生活品味和态度 。是生活百货的新品牌 。
Oneidea
畹町是家居生活用品连锁品牌

文章插图

文章插图

文章插图
设计师从现代人的生活模式和需求进行了深入的探讨 。万鼎店铺采用场景展示与商品展示相结合的综合展示方式,营造富有感染力的生活场景,并根据主题的变化做出相应的调整 。

文章插图
在开店空间中穿插了几种不同纹理的白色材质,主题色为蓝色,在明亮、干净、舒适的空间中增添了趣味性和层次感 。

文章插图

文章插图
由于国内产品的丰富性和多样性,需要使用多种不同的展示模式来展示产品 。设计师对产品进行了合理的考虑和分配,为通用道具的模块化和多种组合方式提供了解决方案 。

文章插图

文章插图
门口插画、收银台和入口处海报的运用,以及收银台黑板画平面视觉系统的应用,处处彰显着设计师的匠心 。

文章插图
【生活日用品店,连锁日用品店叫什么】

文章插图

文章插图

文章插图

文章插图

文章插图

文章插图

文章插图
立面图一

文章插图
立面图二

文章插图
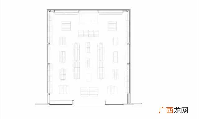
平面图
- 5千元小投资加盟店,小生意加盟什么项目好
- 红薯是粗粮吗
- 消闲果儿零食店加盟费官网,进口零食加盟店10大品牌前三名
- 免费加盟店,免费加盟童装
- 美食让生活更美好作文 创业不体面生活很体面
- 想做拼多多一手货源哪里找,拼多多店铺货源哪里找合适
- 校园奶茶店创业计划书,jk店创业计划书
- 三元店靠谱吗,义乌两三元的店哪里进货
- 小区开玩具店生意好做吗,玩具生意好不好做
- 快餐店加盟 快餐店加盟大概多少
